bb708电子游戏娱乐-手机App下载
首页
关于我们
公司简介
企业理念
核心服务
荣誉证书
新闻中心
企业资讯
行业新闻
产品中心
不锈钢管
不锈钢管件
不锈钢法兰
预制件加工
车间设备
生产设备
检测设备
质保体系
体系认证
售后服务
联系我们
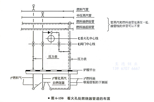
加热炉管道布置设计工程实例
发布日期:2023-09-15 16:06:28 人气:262
圆筒炉的管道布置实例(图6-144~图6-150)
箱式炉的管道布置实例(图6-151)
常用腐蚀介质金属选材参照表
铁路槽车装卸站的分类
猜你喜欢