以某炼油项目装置作为一个实例,列出了在已有工厂中开展新装置平面布置设计的步骤。通过例子展示了某些推荐的做法和布置设计的原则。
一、装置设备布置设计要求的一般资料
当开始做装置设备平面布置图时,需要从工程设计项目组及工艺、设备、仪表、电气、总图等专业得到下列资料。
①. 新装置区域附近现场资料(在某些设计单位,这些条件由总图专业供给管道专业)。
a. 工程设计资料(包括新装置区域现场平面图,地上或地下设施,水、电、汽等公用工程条件,选用的防火规范、安全距离、噪声控制的标准等)。
b. 常年最小频率风向。
c. 装置及进出管线建议的位置。
d. 电缆进出口位置。
e. 新装置区附近的道路、铁路等交通条件及其详图。
f. 装置的基准点位置。
g. 装置的指北向。
h. 检修用吊车的能力和尺寸。
i. 消防车通道。
②. 从其他专业得到的资料。
a. 工艺流程图或管道-仪表流程图。
b. 设备表及设备尺寸。例如:大型储罐的直径、高度或容量;加热炉的外形尺寸、形式,烟囱是独立的还是安装在加热炉顶部,烟囱尺寸;压缩机的形式、外形尺寸,其密封油、润滑油系统的布置,辅助设备的布置;泵的形式、外形尺寸,驱动机的形式和要求;各种非定型设备的规格,包括塔器、换热器、容器等。
c. 设备安装和检修要求。例如:塔的最小安装高度(从地面至塔底封头切线处);有重力流或固体卸料的立式或卧式容器的安装标高要求(立式的指底部封头切线处至地面的距离,卧式的指储槽底部至地面的距离);换热器管束抽芯所需空间;压缩机、泵或其他回转设备拆卸和更换零部件的要求。
③. 空冷器形式和外形尺寸需要和工艺专业协商,因为空冷器通常安装在管廊的上方,管廊的尺寸要和空冷器的规格相适应。
通常在管廊的下方布置泵,需要泵的型号、规格、外形尺寸及泵的吸入口和排出口管线连接尺寸,如能提供样本更好。
二、对工艺流程图的研究
作平面布置图时,工艺流程图已准备好(图5-97)。

请工艺设计人员介绍装置的工艺流程,并研究出直接影响设备布置的若干结论,例如下面所列内容。

①. 设备布置要顺流程。原油加料泵P-101要紧贴装置西边界管线进出口“A”。因为原油管线从“A”处进入装置(图5-98)。
②. 泵应布置在相应的设备附近,以免泵吸入管线压降太大。
③. 要满足大型设备布置上的要求。如加热炉F-101,要保证安全距离。另外,燃料管线用分配台分配,进口接管多,故炉子周围要有足够的空间。
④. 关键管线的柔性要求,在布置阶段请应力分析人员协助,例如:加热炉的转油管线是高温合金管线,要尽可能短,且没有袋形;T-101塔底管线是高温的,要考虑管线的柔性以及备用泵的热的和冷的工况;进出汽提塔T-102和T-103的管线尽可能短;汽提塔至火炬系统的泄压管线应尽可能短。
⑤. 设备布置要考虑配管要求,例如:从T-101至E-115的架空管线应避免有袋形,在满足管线柔性和塔膨胀的前提下,管线走向应简单些;从E-115至V-101的冷凝液管线应避免有袋形;从V-101至压缩机C-101的气体管线尽可能短,避免有袋形。
三、平面布置图的编制
在完成工艺流程图的研究后,进一步检查新收到的各专业的资料是否有其他的要求。开始平面布置图的设计。
①. 如工程没有特殊的要求,装置的操作通道、检修通道及平台的设置等均按设计规范确定,下列各项在设计中应予遵循。
a. 装置检修时,需汽车(吊车)通过的主要检修通道上方最小净空4.5m。
b. 装置四周环形道路上方最小净空5.0m,铁轨上方最小净空5.5m(SH 3012-2000)。
c. 泵的操作温度340℃或340℃以上时,不能布置在管廊下,应布置在距管廊外侧3m以外。泵的操作温度在340℃以下时,可布置在管廊下,必须考虑泵和驱动机的检修,泵上方最小净空3m。
d. 通常,空冷器布置在管廊上。
e. 储存烃类设备的支架及输送烃类管道的管廊支柱应进行防火保护的处理。
②. 要考虑运输、安装设备的位置。道路或通道要有足够的空间,以满足大型设备的运输和安装。
③. 进行初步的设备布置。如图5-98所示,用方块的形式绘出管廊、加热炉、蒸馏塔、框架、控制室等的位置。这张布置图讨论通过,即可开始设计正式的平面布置图。
④. 绘制平面布置图的步骤。
a. 在装置设备布置区域内确定管廊的布置。
b. 加热炉的布置。
c. 控制室的布置。
d. 主要设备的布置,包括分馏塔、空冷器、大型容器、压缩机、泵等。
全部设备布置完成后,经校验,并适当调整,使用计算机绘出正式平面布置图。
四、装置管廊的布置
装置管廊的位置必须优先考虑,因为它会影响设备的布置。
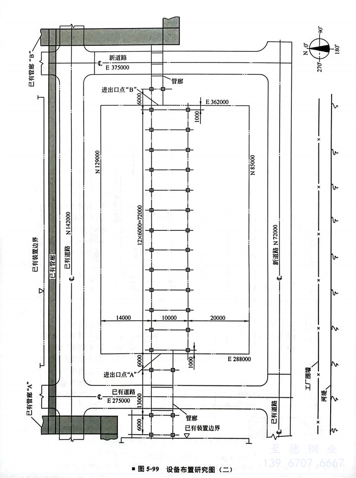
图5-99表示了新装置管廊的位置与已有管廊的关系,下面叙述如何布置管廊。

①. 首先应与土建协商确定结构材料,是使用钢筋混凝土的还是钢结构的。钢筋混凝土的较为经济。
②. 管廊的柱距6m,可满足DN80和DN80以上的管线,不需要中间支承。管廊下两个柱距之间可布置两台中型的泵。
③. 管廊的宽度,首先应明确管廊上是否安装空冷器。若安装空冷器,管廊的宽度由空冷器的管长决定。若管廊上没有空冷器,则作完管线走向草图后,根据管子排列宽度,再预留20%的裕量[全厂性管廊或管墩上(包括穿越涵洞)应留有10%~30%的裕量,装置主管廊宜留有10%~20%的裕量],并考虑管廊下设备检修的最小通道,确定管廊的宽度。
④. 根据已有管廊的位置,新装置管廊东、西向布置较为合理。管廊的柱子边缘距道路不应小于1m。
⑤. 加热炉应放在常年最小频率风向的下风侧,位于管廊南侧(图5-100)。炉子所占面积较大,总宽度为10m,其四周要设置平台,从装置南边界线往北20m设管廊第一排柱子。

五、主要设备的布置
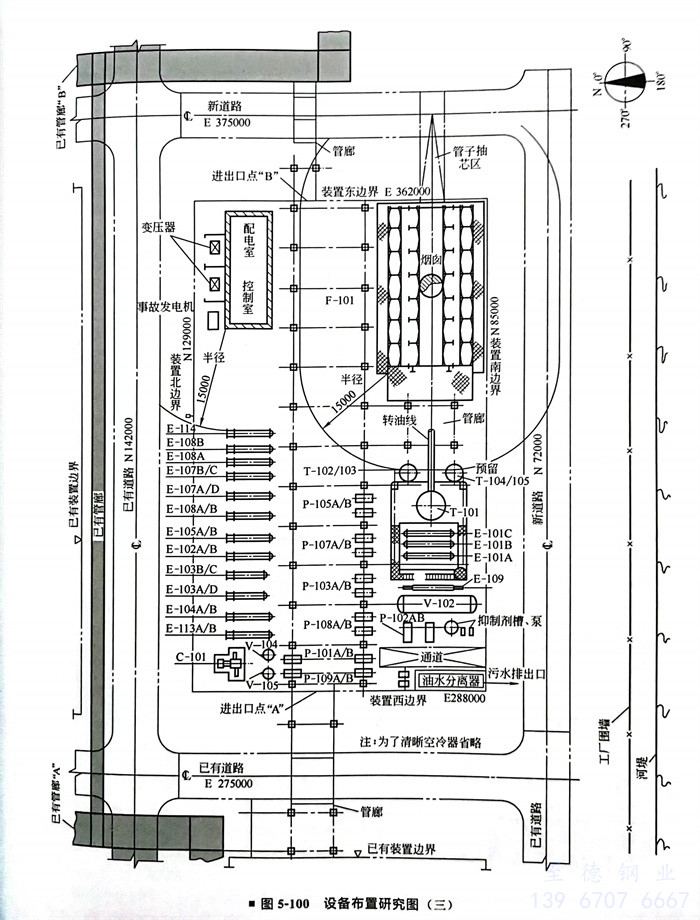
1. 原油加热炉F-101的布置(图5-101)

原油加热炉是长23m宽10m的箱式炉,烟囱和加热炉组装在一起。
加热炉布置的要点如下:
①. 位于常年最小频率风向的下风侧。
②. 加热炉周围保持15m的安全距离。
③. 对流段管束抽芯所需要的空间,在布置图上要表示出,抽芯区域内不得有任何障碍物。
④. 为便于施工安装,加热炉应位于主要道路旁。
2. 控制室的布置(图5-101)
确定控制室的位置时应考虑安全性,控制室应离逸出可燃性气体的设备有15m的距离。在有的设计单位,控制室的布置是由总图专业完成的。
3. 分馏塔T-101及有关设备的布置(图5-101)
从加热炉F-101到塔T-101的转油线是一根关键管线,尽可能短些,因为管口是在炉子的西面,所以T-101在F-101的西面是合理的。
汽提塔T-102 和T-103 紧靠T-101。
如图5-101所示,应按工艺流程和重力流要求布置设备。从T-101来的塔顶管线经换热器E-101至空冷器E-115,再经冷凝器E-110到储槽V-101。
在正式画平面布置图以前,先画一张草图。研究所有设备安装和检修是否可行。
4. 空冷器的布置
大型空冷器E-115放在中间,便于从E-101来的管线敷设。
管线的走向要和流程一致。因为煤油和轻组分油管线在装置东边界进出口点“B”连接,故空冷器E-116和E-117放在E-115的东边。
便于扩建时预留空冷器的安装,预留的空冷器放在E-115的西边。
5. 脱盐水V-102及有关设备的布置(图5-101)
V-102是一个大型设备,直径3m,切线至切线长度为11m,加上球形封头总长为14m。因为管廊至南边界线的距离是20m,可放置脱盐器,故把V-102放在管廊的南边。
换热器E-102、E-103和E-104布置在管廊的北面,因为原油进料管线从西面进入后,经换热器后进入脱盐器。
加热炉加料泵P-102旁布置抑制剂配制设备。脱盐器人口要加入抑制剂,配制设备放在这里,袋子拆卸方便。
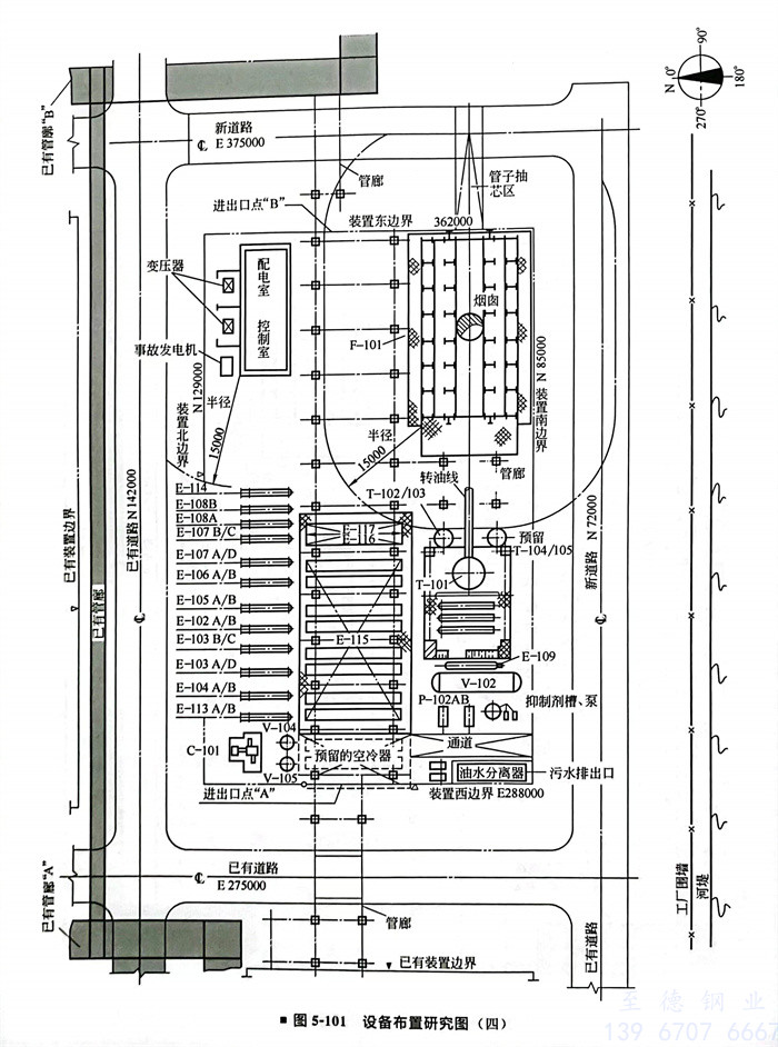
6. 原油预热器群的布置(图5-100和图5-101)
换热器E-105、E-106、E-107放在管廊的北面换热器区域内,和E-102、E-103、E-104排成一行。
这些换热器的布置,不能妨碍换热器周围的检修通道,并要提供足够的管束抽芯空间。在管廊和换热器之间要有足够的距离,以便于接近换热器封头。
完成换热器E-108、E-113和E-114的定位:蒸汽发生器E-108布置在E-107的东边,它靠近泵P-107及相对地接近F-101。
要符合流程图的流向,水冷却器E-113紧靠E-104布置,使得E-101来的配管距离最短。冷却器E-114位于E-108的东边,在控制室最小安全距离之外。
7. 压缩机C-101及附属设备的布置(图5-100和图5-101)
压缩机为往复式、两段、电机驱动的双缸对置式压缩机,带一、二段冷却器,一台,占地面积约5㎡。
甲方没有提出建造压缩机厂房的要求时,则压缩机露天安装。它和吸入罐V-104及V-105一起布置在装置的最西端。
因为气体和二段冷凝液管线在“A”处进出装置,压缩机C-101布置在装置边界线附近是很理想的。
8. 泵的布置
图5-100示出了管廊下泵的布置。
当管廊柱间距为6m时,可安装两台中型泵,并有供电缆的足够空间。泵的排出口位于管廊柱中心线外侧600mm(见图5-102)。
原油加料泵P-101位于装置西边界管线进出口附近。
泵P-103、P-105和P-108靠近有关设备T-101布置,分馏塔T-101及泵的吸入管线要有一定的柔性。
泵P-104、P-106布置在框架下。
9. 油水分离器的布置(图5-100)
油水分离器是把烃类和雨水、消防水分离,然后用泵将烃送至废油罐(在装置以外)处理,分离器排出的污水送至全厂污水处理系统。
场地西南角的尺寸和位置布置油水分离器合适,理由如下:装置污水管要接至工厂已有污水总管,正好在油水分离器的南面;废油管线理想的引出位置在“A”点,离加热炉F-101的距离最远。
六、管线走向研究图
平面布置图供给各有关专业前,根据管道-仪表流程图画管线走向图以校验平面布置图。
①. 管线走向图的用途有:决定管廊的宽度和层数;校核设备布置和物料流向。
②. 管线走向图由装置设备布置设计者负责绘制。管线走向图由一根根管线组成,管线走向尽可能使距离缩短,减少不必要的绕行。通常,管廊的走向改变的,要改变标高,图上不必表示管子的上升和下降。
管廊上的调节阀组、孔板和主要管线中的特殊配件应表示出位置,以便校核所需要的空间。
当管线走向图完成后,应校核管廊的宽度,为今后的扩建,每一层管廊预留一定的余量。如果管廊的宽度超过10m,通常改为双层管廊。
③. 管线走向图应做到如下各点。
a. 管廊的宽度一般不超过10m。
b. 只有安装空冷器组的一段管廊需要双层的。
c. 为加热炉F-101转油线的支承,需设一单层管廊。
d. 在管廊上敷设电气和仪表电缆,两电缆槽之间要有1m的净距。
e. 确定管廊横梁的标高。
f. 在管线进出口“A”处若为单层管廊时,需增加管廊的宽度,在管线进出口“B”处为单层管廊时,也需增加管廊的宽度(去火炬干管除外)。
g. 确定从控制室来的电缆架的位置。
h. 确定冷却水、循环水在装置进出口的位置。
i. 完成装置进出口管线表,包括管线尺寸和流动介质。
七、修改并完成建议的平面布置图
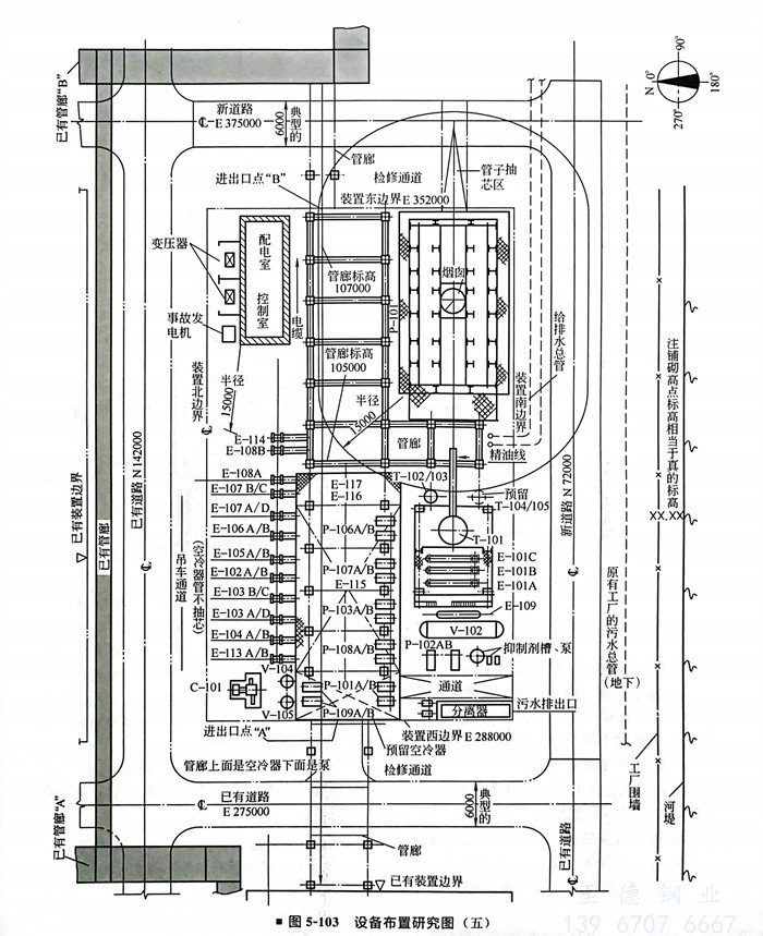
将建议的平面布置图修改了,把管廊北面的换热器群南移,使换热器壳体的一部分和封头位于管廊下,因为附近没有泵。图5-103中还表示了空冷器管束抽芯所需的吊车通道。

为了保证装置检修时吊车能吊装各种负荷,要校核吊车的荷载能否达到要求。
图5-102是装置的剖视图,这张图需要与甲方及施工单位结合,它进一步验证了通道等检修条件是否满足要求。

图5-104为用坐标标注平面布置图的实例:建、构筑物的尺寸要以坐标标注,设备的安装尺寸从有坐标的柱号标注相对尺寸。


