①. 一般不锈钢容器管道受工艺过程和容器结构的约束因素较少,所以不锈钢管道的敷设重点在操作方便、经济美观。
②. 不锈钢容器的周围宜分为配管区和操作区,不锈钢管道布置在配管区,仪表、人孔和梯子布置在操作区。
③. 不锈钢管道宜沿着立式容器的外壁布置,管道上的阀门应与设备管口直接连接。
④. 卧式容器下部的管道如果考虑人员通行,管道距操作面的净空高度不应小于2.2m。
⑤. 不锈钢容器底部管道沿地面敷设时,管道低点排液口距地面的净距不应小于150mm。
⑥. 不锈钢容器管道配管设计应满足工艺要求。例如,入口管道避免出现袋形;有无坡度等要求。如图5.27(a)、(b)所示,为使停工时管内不积液,应采用底平的异径管。如图5.27(c)、(d)所示,回流油罐进泵管线不得出现下袋形,防止气阻和汽蚀,防止泵抽空。如图5.27所示,初馏和常压塔顶回流罐的通往燃料气的管线,其切断阀应靠近设备管口,管线不得出现袋形,以免积液影响罐内压力,在管线的高点设放空阀。

⑦. 优先考虑卧式容器的大口径不锈钢管道,然后考虑其他管道,考虑支承,美观地敷设。
⑧. 不锈钢管道可在容器本体上设置支架。
⑨. 从立式容器上部管口下来的管道和大口径不锈钢管道应优先配置。
⑩. 不锈钢容器安全阀的配管设计
a. 按照TSG R0004《固定式压力容器安全技术监察规程》规定:压力容器安全阀应当竖直安装在压力容器液面以上气相空间部分,或者装设在与压力容器气相空间相连的管道上;压力容器与安全阀之间的连接管和管件的通孔,其截面积不得小于安全阀的进口截面积,其接管应当尽量短而直;压力容器一个连接口上装设两个或者两个以上安全阀时,则该连接口入口的截面积,应当至少等于这些安全阀的进口截面积总和;安全阀与压力容器之间一般不宜装设截止阀门;为实现安全阀的在线校验,可在安全阀与压力容器之间装设爆破片装置;对于盛装毒性程度为极度、高度、中度危害介质,易燃介质,腐蚀、黏性介质或者贵重介质的压力容器,为便于安全阀的清洗与更换,经过使用单位主管压力容器安全技术负责人批准,并且制定可靠的防范措施,方可在安全阀(爆破片装置)与压力容器之间装设截止阀门,压力容器正常运行期间截止阀门必须保证全开(加铅封或者锁定),截止阀门的结构和通径不得妨碍安全阀的安全阀的安全泄放。
b. 不锈钢容器安全阀设计安装位置靠近容器的主管位置,远距离设置时,要进行压降核算。
c. 安全阀跳动时,产生推力,应设计抗推力的支架。
d. 排向大气的喷出管口肘部设置泪孔,以便于液体和雨水排出。排放不要朝向通道口。
e. 多个安全阀相邻安装时,排出管采用集合管形式。
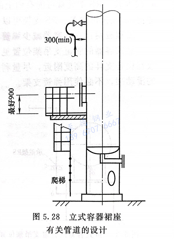
⑪. 立式容器若采用裙座式支撑,容器底部的所有管口应采用管线把接口法兰引到裙座外侧,裙座内不得安装法兰和阀门等,见图5.28。

⑫. 受热作用的管道应考虑其柔性要求。例如,与离心压缩机相接的管道;仪表用的较长连接管。
⑬. 产生振动的管道应对支架进行加固。

